Вход/Регистрация
Автомойка
вернуться

Дубровский Дмитрий Алексеевич

Шрифт:
Площадь помещения

По площади рассчитывайте примерно так: один моечный пост – это 4,5 м х 8,5 м = 38 м2. Этого более или менее хватает для мытья любого автомобиля. Желательно, конечно, увеличить ширину до 5–6 м. Плюс помещение для установки очистных и выноса оборудования – 10 м2. Плюс электрощитовая, водомерный узел, вентиляторная, компрессорная. Плюс помещение для персонала – 15 м2. Плюс клиентская зона – 15 м2. В целом для ручной мойки на два поста рассчитывайте на площадь от 130 м2. Еще желательно предусмотреть место под витрину магазинчика автоаксессуаров. Многое будет зависеть от оборудования, поэтому консультируйтесь с поставщиками заранее.

Въезд и выезд должны быть сквозными. Само собой, желательно, чтобы машины стояли параллельно, а не друг за другом. Ворота лучше подъемные, а не распашные, это экономит площадь.

Самое важное: не относитесь к расчетам необходимой площади наплевательски. Лучше заранее потратить время на продумывание и обсчеты, чем потом кусать себе локти. По сложности согласование пристройки к готовому зданию или реконструкции готового здания сопоставимо с постройкой нового.

Чтобы запустить процесс открытия и начать сбор необходимых документов, вам понадобится эскиз мойки. Он включает план-схему здания, план участка, описание оборудования, первичные расчеты по водо-и электропотреблению.

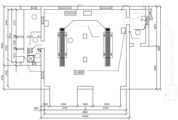
Вот в качестве примера план-схема здания мойки на два поста (рис. 1).

Дополнительно вам как читателю этой книги я хочу предложить несколько планов моек на два, три и четыре поста. Чтобы их получить, зайдите на секретную страницу моего сайта –bookbonus/2/plan.

Энерго– и водопотребление ручной мойки

Потребление воды и электричества зависит от того, каким оборудованием вы будет пользоваться, от вентиляции, освещения и отопления.

Посчитать примерную пиковую нагрузку достаточно просто. Допустим, у вас мойка на два поста:

• два АВД – 15кВт;

• вентиляция – 3кВт;

• компрессор – 2 кВт;

• очистные – 2 кВт;

• освещение – 2 кВт.

Итого выходит около 24 кВт. Причем для оборудования на 220 В сеть нужна более надежная, чем для 380 В.

Потребление воды зависит от характеристик моечных аппаратов и загрузки мойки. По поводу того, куда девать грязную воду, читайте в главе про очистное оборудование.

Отопление

Первый вариант – обычное центральное отопление. Но не всегда его возможно подвести. Второе – газовый котел. Наиболее экономичный вариант – котел на отработанном масле, например американский «CleanBurn».

Рис. 1. План-схема здания мойки на два поста

7. Портальная мойка

Портальные мойки – это автоматика. Функции человека с АВД выполняет оборудование. По типу «воздействия» порталы бывают контактными, где грязь оттирают щетки, бесконтактными, где используются только струи воды под высоким давлением, и гибридными, где могут использоваться оба способа.

Портал представляет собой П-образную арку, в которую заезжает машина, а арка движется вдоль автомобиля и моет его. В «мозги» портала можно закладывать разные программы для отмывания грязи различной степени тяжести и с разным набором дополнительной химии. Соответственно будет тратиться разное время на мойку. Разумный минимум – 2 минуты, разумный максимум – 15 минут. На практике одна машина моется 5-10 минут. Стандартная загрузка на коммерческой мойке – 8–9 машин в час. Средняя загрузка портала, например, в Москве составляет 100–130 машин в сутки.

Основное преимущество портала перед ручной мойкой – это производительность и минимальное влияние человеческого фактора. Себестоимость услуги портала намного ниже, чем на ручной мойке: 15–20 руб. на одну машину против 50 руб. на ручной мойке.

При всем при этом на данный момент порталов по сравнению с ручными мойками очень мало. Это связано с тем, что рынок моек у нас находится еще в самом начале развития, но прослеживаются тенденции к резкому росту числа автоматических моек. Например, за последние 3 года рост продаж автоматических моек у московского дилера Christ AG составляет 300 % ежегодно. В 2009 году он, возможно, будет меньше – сказывается влияние экономического кризиса, тут уж ничего не поделаешь. Сейчас программу размещения автоматических моек прорабатывают или уже начали осуществлять практически все сетевые АЗС. Если раньше это были только «BP» и «Neste», то сейчас такие программы запущены в «Лукойле», «Газпром-Нефти», «МТК», «ПТК» и т. д. За последние два года также существенный рост был в сфере частных заказчиков. Плюс в большинстве дилерских техцентров сейчас уже изначально рассматривают только автоматическую мойку, так как ручные не справляются по производительности.

С автоматикой также связано несколько предрассудков, и многие автовладельцы не хотят мыть машину в портальных мойках. Есть куча историй про оторванные в портальных мойках зеркала, дворники, молдинги и антенны.

Вот комментарии Михаила Шведова, специалиста московской компании «Евротек».

В ЭТОМ ВОПРОСЕ СТОИТ ВЫДЕЛИТЬ ПЯТЬ ОСНОВНЫХ ФАКТОРОВ, ИЗ-ЗА КОТОРЫХ ПРОИСХОДЯТ ПОДОБНЫЕ ВЕЩИ.

1. «Самопальный» тюнинг – если спойлер прилеплен скотчем, он с высокой степенью вероятности оторвется. Если машина покрашена в гараже и сохла на улице, вполне возможно повреждение краски и появление царапин.

2. Неподготовленная машина—для предотвращения нештатных ситуаций настоятельно рекомендуется снимать багажники с крыши, складывать антенны и зеркала. Особое внимание следует уделять кенгурятникам: если они особо навороченные, лучше такие машины мыть вручную.

3. Безалаберность хозяина мойки – если портал неисправен или не работают системы аварийного отключения (что запрещено инструкцией по эксплуатации), но установку все равно «гоняют», никто не даст никаких гарантий. То же самое, если не меняются щетки. В этом случае помимо уменьшения толщины щеток уменьшается еще и их суммарный вес. Все современные порталы отслеживают уровень прижима щеток на основании замеров сопротивления в электроприводе щетки. Если щетка легче номинального значения, портал понимает это как недостаточный прижим и давит сильнее нужного. В некоторых случаях это приводит к контакту вала щетки с выступающими элементами машины (в основном с зеркалами).

4. Недобросовестность клиентов – например, поцарапал такой клиент машину или заломил зеркало. Не на мойке, а где-то в другом месте. После того как машина покрылась толстым слоем грязи, он едет на автоматическую мойку, после чего начинает скандалить и требовать компенсации.

5. Особенности конструкции конкретных моделей моечных установок или моделей машин – конструктивные технические особенности. Приведу пример: на портале «Christ C150 Primus» в процессе тестирования перед серийным производством выявилась следующая особенность. При обратном проходе портала (от зада машины к переду) во время сушки иногда от напора воздуха открывались лючки бензобаков. Они бодро «сносились» контурными боковыми соплами, так как открытие лючка происходило после сканирования данной зоны соответствующим фотодатчиком. Поэтому была немного изменена программа, чтобы не допустить таких вещей. Но это конкретная установка конкретного производителя. Далеко не все производители реагируют на такие «мелочи», особенно если для них изменение конструкции связано с колоссальными трудностями. Этим, кстати, во многом отличаются немецкие производители от, например, более дешевых итальянских. И наоборот. Некоторые модели машин имеют своих «тараканов». К примеру, у «Mini Cooper» – это острый спойлер крыши, у «BMW X5» – очень широкие зеркала (надо обязательно складывать), у новых «Audi A4» и «A6» – новомодная антенна-плавник, которая имеет обыкновение отлетать из-за зажима ворса щетки крыши. Все такие «тараканы» имеют сугубо конкретный характер и свойственны преимущественно малораспространенным машинам. Различные профильные мировые ассоциации мойщиков регулярно выпускают соответствующие бюллетени, в которых описываются возможные проблемы с автоматической (и не только) мойкой конкретной модели. Ну а автопроизводители оперативно вносят изменения в конструкцию машин (к примеру – Audi уже поработала над плавником).

Пункты 1, 2 и 4 лечатся путем нормальной предварительной подготовки машины. Мойщик, имея достаточную квалификацию, ничего из указанного в этих пунктах не допустит. Пункт 5 лежит в области форс-мажора, поэтому многие мойки (не только автоматические) сейчас предпочитают страховать производственные риски. Пункт 3 не лечится никак.

Также возможны проблемы из-за неправильной работы датчиков и/или электроники на устаревших системах. Там обычно стоят фотодатчики, которые чувствительны к брызгам и пару. На новых установках нормальные производители ставят инфракрасные датчики.

Следующий момент: качество мытья. Само собой, автоматика отмоет машину не так хорошо, как человек с АВД, и чем сложнее форма машины, тем сильнее это заметно. На каких-то моделях машин портал будет мыть очень хорошо, на других будет не промывать некоторые участки – задние номера, места за поворотниками, колесные арки, места за кенгурятником на джипах и т. д. Ну и, как уже было сказано, порталы рассчитаны на мойку стандартной машины без всяких тюнингов. Также нельзя мыть машины с дефектами кузова.

  • Читать дальше
  • 1
  • ...
  • 8
  • 9
  • 10
  • 11
  • 12
  • 13
  • 14
  • 15
  • 16
  • 17
  • 18
  • ...

Ебукер (ebooker) – онлайн-библиотека на русском языке. Книги доступны онлайн, без утомительной регистрации. Огромный выбор и удобный дизайн, позволяющий читать без проблем. Добавляйте сайт в закладки! Все произведения загружаются пользователями: если считаете, что ваши авторские права нарушены – используйте форму обратной связи.

Полезные ссылки

  • Моя полка

Контакты

  • chitat.ebooker@gmail.com

Подпишитесь на рассылку: